-
14 Jun -
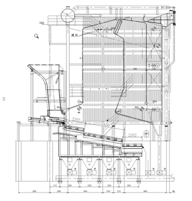
14 JunWorking principle of the grate of the garbage incineratorWorking principle of the grate of the garbage incinerator.read more -
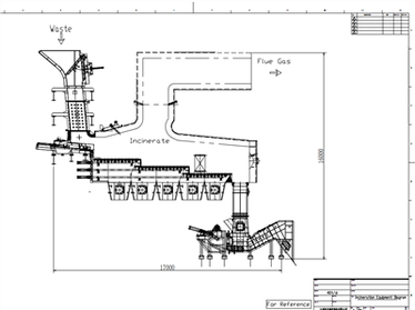
06 JunWhat is the Components and Basic Operation Methods of Waste IncineratorsComponents and basic operation process of waste incinerator.read more -
05 JunWhy Choose a Waste Incinerator to Dispose of Waste?Garbage incinerator is a necessary means of modern environmental protection.read more -
10 MayWhat is the importance of solid waste incinerators to a green and environment...solid waste incinerators play an important role in the promotion of a sustainable and eco-friendly living environment. They reduce the amount of wasteread more -
11 MarGreen Guardian: Outlining the environmental goals of small industrial waste i...Small industrial waste incinerators have increasingly become an essential part of sustainable development, providing unique charm and significant enviread more -
28 DecWhat kind of standard should the incineration system of a waste incinerator m...Today we will briefly introduce to you the knowledge about garbage incinerators, and hope that you can count them into the working state. From the perread more -
27 DecWhat is the method that affects the long-term operation of the waste incineratorWhat is the method that affects the long-term operation of the waste incinerator, let's take a look at the answer we have for you today.read more -
26 DecWhat is the preparatory action of the waste incineratorBefore garbage incineration, the garbage is always sorted, because the types of garbage are different, the hazards are also different, and the type ofread more -
25 DecWhat are the commonly used thermal media for domestic waste incinerator manuf...The waste incinerator uses the heat generated by the combustion of auxiliary fuels to raise the temperature of combustible harmful gases to the reactiread more -
22 DecWhich industries in our lives use waste incinerators?The knowledge of garbage incinerators, this problem also bothers the editor, today we have consulted the information for you to sort out the article.read more -
21 DecWaste incinerators are widely usedGarbage incinerator is a kind of harmless treatment equipment commonly used in the harmless treatment of medical and domestic waste and animals.read more





